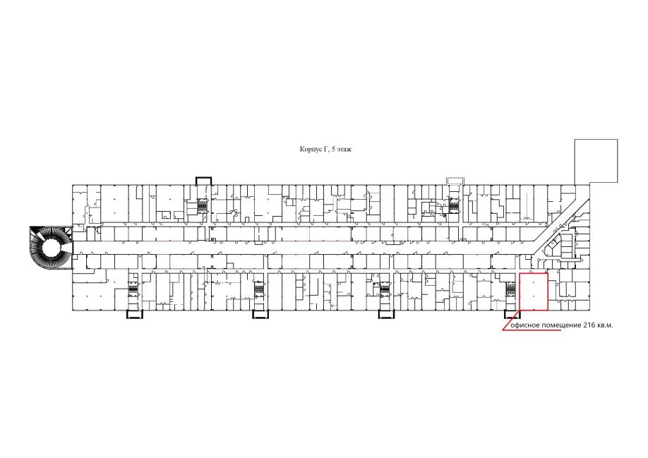
Офис с окном 216 м² (№123)
Корпус Г этаж 5
- Площадь 216 м²
- Этаж 5
- Корпус Г
- Окно Есть
Описание
- Наличие мебели: По запросу
- Наличие и характеристики окон: Помещение с окном
- Характеристики отделки/наличие ремонта: Пол - ламинат, стены - обои под покраску, потолок - открытый
- Описание: Большой светлый офис одним кабинетом, выполнен свежий ремонт, разводка электрики и систем кондиционирования, приточно-вытяжная система вентиляции, сплинкерное пожаротушение, установлены АПС и системы оповещения при пожаре
- Цена (с учетом НДС) в месяц за лот: 306 000 ₽
- Преимущества:
- Удобная планировка: открытое пространство/ открытое пространство + несколько кабинетов;
- Возможность перепланировки помещения под Ваши нужды;
- Большая парковка для сотрудников и клиентов;
- Возможность заезда транспорта в здание для разгрузки/погрузки;
- График работы 24/7;
- Возможность предоставления юридического адреса
- Парковка: 7 000 мест
- Инфраструктура:
- Банки, аптеки, продуктовые магазины, салоны красоты, дом быта, сервисные центры, фитнес клуб, отель, рестораны и кафе, типографии, юридические, бухгалтерские услуги, нотариус
- Кафе: Прайм, Даблби, Шоколадница, Правда кофе, Кофе твой друг, Перекресток
- Рестораны: Мясо Рыба, Остериа Марио, Швили
- Рестораны с комплексными обедами: Миндаль, 5 Звезд
- Рестораны быстрого питания: Ростикс, Вкусно и точка
- Фуд-корт: Матча, Теремок, Крошка картошка, Индиан фуд, Китайская еда, Чайхана
- Транспортная доступность:
- 50 м от метро "Румянцево"
- 500 метров от МКАД
- Близость к международному аэропорту Внуково
306 000 ₽/мес.
Цена за м² — 1 416 ₽
Корпус Г, этаж 5
Виртуальный тур
306 000 ₽/мес.
Цена за м² — 1 416 ₽
- Площадь 216 м²
- Этаж 5
- Корпус Г
- Окно Есть
- Наличие мебели: По запросу
- Наличие и характеристики окон: Помещение с окном
- Характеристики отделки/наличие ремонта: Пол - ламинат, стены - обои под покраску, потолок - открытый
- Описание: Большой светлый офис одним кабинетом, выполнен свежий ремонт, разводка электрики и систем кондиционирования, приточно-вытяжная система вентиляции, сплинкерное пожаротушение, установлены АПС и системы оповещения при пожаре
- Цена (с учетом НДС) в месяц за лот: 306 000 ₽









